Te koop op plan: 4 nieuwbouw woningen in Hoegaarden

Nerm 129, 3320 Hoegaarden

< Terug naar projecten te koop

Over dit project

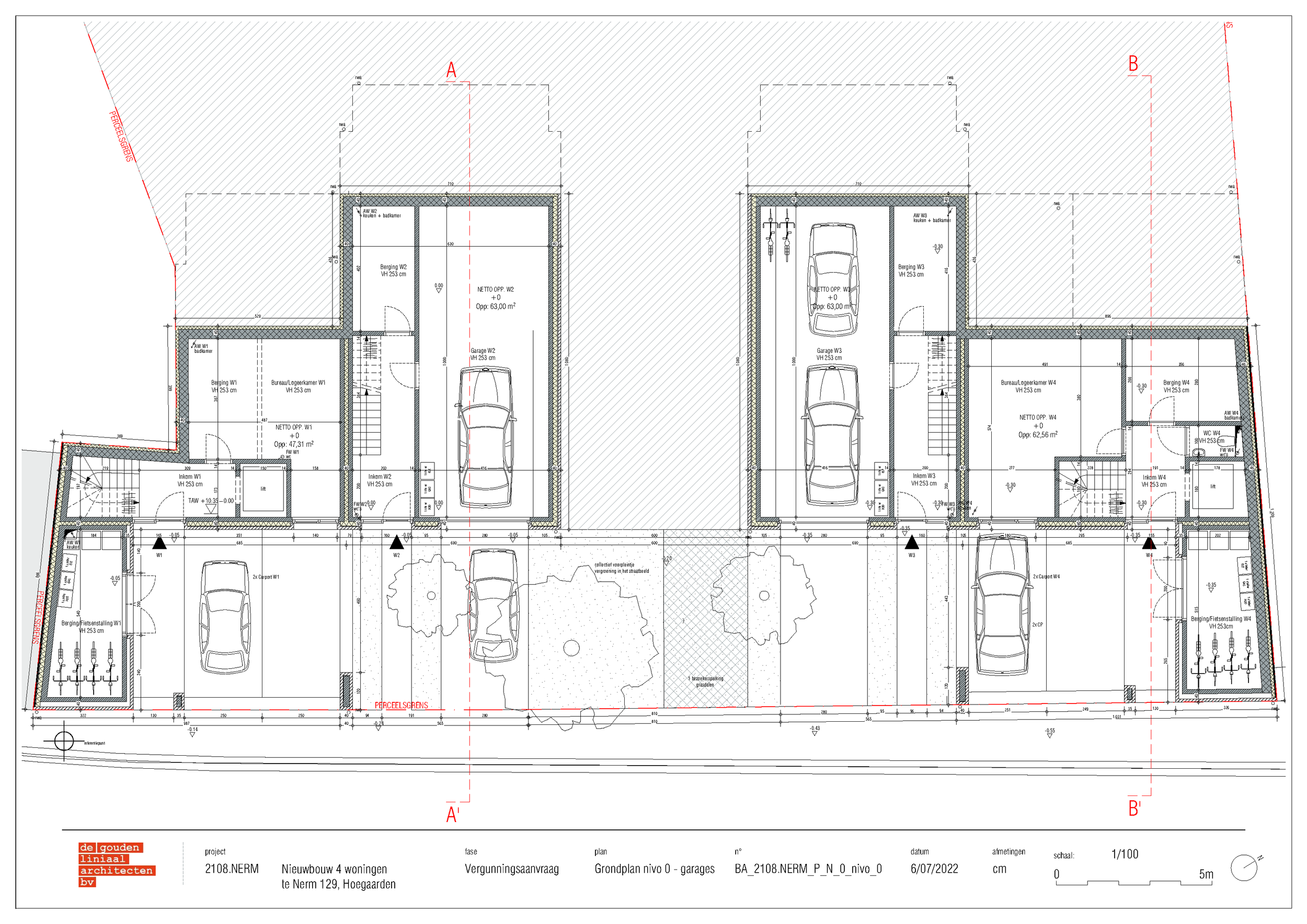
Dit nieuwbouwproject bevindt zich in een klein gehucht van de gemeente Hoegaarden. Hier komen 4 woningen, waarvan 3 in halfopen verband. De woningen bieden een leefverdieping op tuinniveau, 2, 3 of 4 slaapkamers op de eerste verdieping en een gelijkvloerse verdieping op straatniveau met ofwel overdekte staanplaatsen en een fietsenstalling, ofwel een ruime garage en een extra, niet-overdekte staanplaats. Elke woning heeft een eigen tuin met terras en de percelen grenzen achteraan aan agrarisch gebied.

Status van dit project: vergund, te koop op plan

Contacteer itimmo voor meer info en verkoop

Het aanbod

4 nieuwbouw woningen in halfopen verband

  • Op het gelijkvloers (op straatniveau), keuze uit

    • 2 woningen met 2 overdekte staanplaatsen, een fietsenberging en een polyvalente ruimte

    • 2 woningen met een ruime garage, een berging en een niet-overdekte staanplaats voor de garage

  • Op de eerste verdieping: keuze tussen woningen met 2, 3 of 4 slaapkamers en 1 of 2 badkamers

  • Op de tweede verdieping (op tuinniveau): open leefruimte met volledig ingerichte keuken.

  • Terras en tuin: elke woning heeft een eigen terras en tuin.

De ligging

Dit project wordt gerealiseerd in een klein gehucht van de gemeente Hoegaarden, vlakbij de taalgrens. Bushaltes zijn er in Hoegaarden, het dichtst bijzijnde station is dat van Tienen en de aansluiting met de E40 Leuven-Brussel/Luik bevindt zich op 4,5 km.

De troeven

  • Keuze uit 4 woningen, waarvan 3 in halfopen verband en 1 in gesloten verband: de bruto vloeroppervlakte van de woningen bedraagt tussen 215 en 290m² en de perceelsgroottes bedragen tussen 415 en 527m².

  • Elke woning is ontworpen om maximale licht- en zoninval te genereren.

  • De woningen worden volledig afgewerkt en zijn naar eigen smaak verder in te richten. Voor de keuken, het sanitair en de vloeren zijn ruime budgetten voorzien.

  • De inplanting van de woningen zorgt telkens voor maximale privacy.

  • De terrassen van de 4 woningen worden door ons aangelegd, net als de tuinen.

  • Parkeerplaats en fietsenstalling: de verdieping op straatniveau biedt ruim voldoende plaats voor auto’s, fietsen en extra bergruimte.

De technieken

  • Verwarming: luchtwaterwarmtepomp gekoppeld aan vloerverwarming, wat zorgt voor verwarming in de winter en koeling in de zomer.

  • Ventilatie: D-systeem met warmterecuperatie

  • Hernieuwbare energie: voltaïsche zonnepanelen (aantal aanpasbaar aan finale EPB-studie)

  • Lift: woningen 1 en 4 worden uitgerust met een lift.

  • Wadi, bovengrondse regenwater infiltratievoorziening op een stuk gemeenschappelijk groen achteraan de tuinen